$248,000
3.34 acre lot
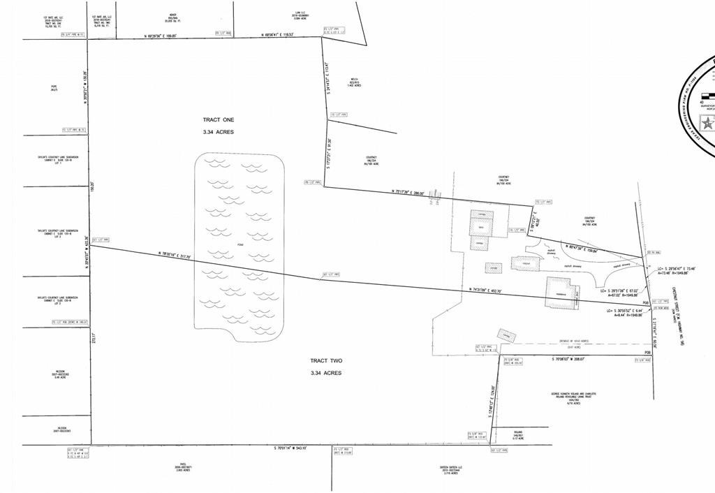
1612 South Chestnut, Lufkin, TX
Prime commercial opportunity in a high-visibility location with strong traffic exposure. Situated on Chestnut near Loop 287—directly across from the Chamber of Commerce—this level 3.34-acre tract offers excellent accessibility and development potential. According to TxDOT's 2024 Annual Average Daily Traffic Count, the area sees approximately 8,156 vehicles per day, making it an ideal site for a wide range of commercial uses.
Brokered by GANN MEDFORD Real Estate, Inc.
Interested in this property? Lets get in touch!
Call our office or send us an email.
This property viewed 3 times on cpre.com
Selling, Leasing, or Investing in Commercial Real Estate?
Visit CPRE Commercial
Charles Pool Real Estate, Inc.
3505 North Street
Nacogdoches, Texas 75965
(936) 564-2622